![]() |
咨詢熱線:13905285398
|
產品中心 Products
center
|
pvdf活套法蘭價格:面議發布時間:2022/4/1 16:56:23 來源:http://m.gzkangyi.com/ 生產廠家:鎮江市神龍電器管件有限公司 |
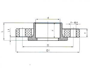
本文將會在pvdf活套法蘭的特性、用途、規格上面做詳細的說明與介紹,鎮江市神龍電器管件有限公司作為是專業的pvdf活套法蘭生產廠家,為您選購適合自己的產品做一定的指導是必要的。 要問pvdf活套法蘭哪里好,當選神龍管件。
詳細信息
pvdf活套法蘭的特性
的化學穩定性良好,具有優良的耐化學腐蝕性、耐候性和良好的耐熱穩定性,可在-62150溫度范圍內長期使用。同時電解常數大,是良好的絕緣材料之一。能耐除強堿性胺、強溶劑外的所有鹽、酸、堿、芳徑、鹵素等介質。不燃、耐疲折斷、抗磨損、自潤滑性能好,雖原料進口,價格昂貴,一次性投入大,但價格大大低于進口管材,并以其優良耐腐蝕性能,無與倫比的使用壽命、安全系數高,將給您帶來顯著的綜合經濟效益。

pvdf活套法蘭的技術參數
相對密度 1.76
吸水率(%) 0.04
晶體熔點() 171
脆化溫度() -61
比熱容(J/KGK) 1170
線膨脹系數(K) 80×10
熱變形溫度(),0.46M 150
1.86MPa 90
分解溫度() 316
工作溫度范圍() -40-150
拉伸強度(MPa),25 49.2
100 35.2
伸長率(%) 30-400
抗壓強度(MPa) 70
沖擊強度(KJ/) 1.47×104
拉伸彈性規模量(MPa) 840
彎曲彈性模量(MPa) 1400
壓縮彈性模量(MPa) 840
硬度(HB) 7
摩擦系數(對鋼) 0.14
介電系數(60Hz) 8.40
(106Hz) 6.43
節電損耗(60Hz) 0.05
(106Hz) 0.16
體積電阻() 2×10
擊穿強度(kv/m) 10
耐電弧性(s) 50-70
燃燒性 自熄
透明性 透明半透明
耐化學腐蝕性 良好


上一篇我們就平面法蘭做了詳細介紹和說明, pph管法蘭在下一篇繼續做詳細介紹,如需了解更多我們的信息,請持續關注。
本文由pvdf活套法蘭生產廠家鎮江市神龍電器管件有限公司于2022/4/1 16:56:23整理發布。
轉載請注明出處:http://m.gzkangyi.com/flgj/4989.html。
上一篇: 平面法蘭
下一篇:pph管法蘭
相關新聞
- PP管的優點和選購注意事項2022-03-22
- FRPP管在施工過程中的規劃2022-03-15
- pp管的三點安裝工藝步驟2022-03-09
- PPH管的連接方式有哪三種2022-03-02
- FRPP管的運用范圍及改性性能2022-02-25
- 為什么pp管能廣泛用于環保排污工程2022-02-21
- PVDF管道焊接工藝的材料準備2021-11-26
- 選購時PP管件注意及購買后運輸2021-11-18
相關產品






